Wohnnutzfläche: 75m2
Fotos: Gerhard Klocker
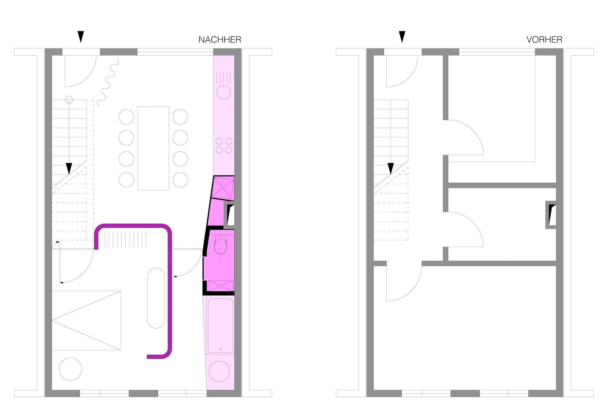
Der Gesamtraum im Untergeschoß wird durch zwei große Elemente gegliedert:
– die weiße Klammer als zentrales Element
– die schwarze Versorgungsschiene
Diese Elemente umschließen und begleiten den Essbereich und den Empfang. Die abgerundeten Ecken der Klammer, ihre Helligkeit und Situierung erzeugen einen luftigen, großzügigen Eindruck – der Raum umfließt die Klammer. Durch diesen Eingriff wird die gesamte Raumtiefe wahrnehmbar, wodurch – je nach Tageszeit – spannende Lichtstimmungen entstehen.
Im Schlafbereich wirkt die Klammer als schützendes Element. Sie schafft Geborgenheit und Intimität.
Die schwarze Versorgungsschiene gibt dem Raum Halt, dient als Rückgrat. In ihr sind alle notwendigen Infrastrukturen enthalten (Küchengeräte, Abstellraum, Waschmaschine, Vorrat, WC, Therme, Badewanne…).